Fara í meginefni
Melda
140sæti
Hentar fyrir
Brúðkaup
Afmæli
Árshátíð
Ráðstefna

Um salinn

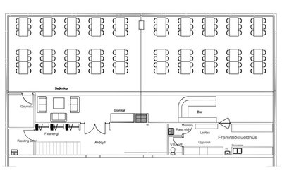
Gala er glæsilegur veislusalur staðsettur miðsvæðis í Kópavogi, fullkominn fyrir fjölbreytta viðburði og ráðstefnur. Salurinn er bjartur og fallegur, með aðstöðu sem býður upp á sæti fyrir allt að 140 gesti. Fyrir smærri viðburði er hægt að skipta salnum í tvennt og nýta einungis annan hluta hans. Allur nauðsynlegur búnaður fyrir ráðstefnur er til staðar, sem gerir Gala að kjörnum stað fyrir slíka viðburði. Fatahengi er hannað með stórar veislur í huga og salernisaðstaða er til fyrirmyndar með fimm salernum, þar af fjögur fyrir gesti og eitt fyrir starfsfólk við eldhúsið. Eldhúsið er rúmgott og vel útbúið með eldavél, stórum ísskáp og uppþvottavél, ásamt bar og koníakshorni. Veislusalurinn býður einnig upp á útgengt á rúmgóðar svalir, sem gefur gestum tækifæri til að njóta útiveru. Gala er fullkomið val fyrir hverskyns mannfagnað, allt frá fermingum og brúðkaupum til árshátíða og afmæla. Athugið að salurinn er leigður án veitinga, sem gefur leigjendum frelsi til að velja eigin veitingarþjónustu.

Gala

Heimsækja vefsíðu

Helstu kostir

Bílastæði
Sætaskipan
Hefðbundið borðhald

Veitingar og drykkir

Veitingaraðeins eigið
Hressingaraðeins eigið
Áfengiaðeins eigið
Starfsfólkaðeins eigið
Þrifaðeins eigið

Aðstaða

Eldhús
Bar
Kaffivél
Uppþvottavél
Hljóðkerfi
Dansgólf
Bílastæði
Frítt að leggja
Útisvæði
Inniaðstaða
Fataskápur
Ljósabúnaður
Svið
Þráðlaust net
Búningsherbergi

Búnaður

Matarílát
Borð
Stólar
Hljóðnemi
Glerílát
Borðdúkar
Myndvarpi
Skjár
Karaoke
Píanó
Gítar

Aðgengi

Hjólastólaaðgengi
Lyfta
Rampur fyrir hjólastóla
Aðgengilegt baðherbergi
Fjöldi salerna: 5

Auka eiginleikar

Gisting í boði
Tjaldsvæði
Barnvænt
Gæludýravænt
Reykingar leyfðar
Öryggisgæsla
Sturta
Heitur pottur
Gufubað
Sundlaug
Heilsulind (Spa)
Líkamsræktaraðstaða

Staðsetning

Upplýsingar um bílastæði

Næg bílastæði

Allar myndir